HOSPITIUM

L’hospitalité c’est une loi d’avant la loi qui ouvre la possibilité d’un accueil – Jacques Derrida

— SUJET

Concours Acier 2025

(Projet finaliste)


— DATE

Avril 2025


TÉLÉCHARGER PDF

Le Concours Acier est un concours national destiné aux étudiants en écoles d’architecture et d’ingénieurs. Il invite les participants à explorer les possibilités techniques et architecturales de l’acier à travers un projet original. Chaque année, un thème est proposé : en 2025, il s’agit de la construction hors site, une approche innovante basée sur la préfabrication et l’assemblage rapide, où l’acier joue un rôle clé.


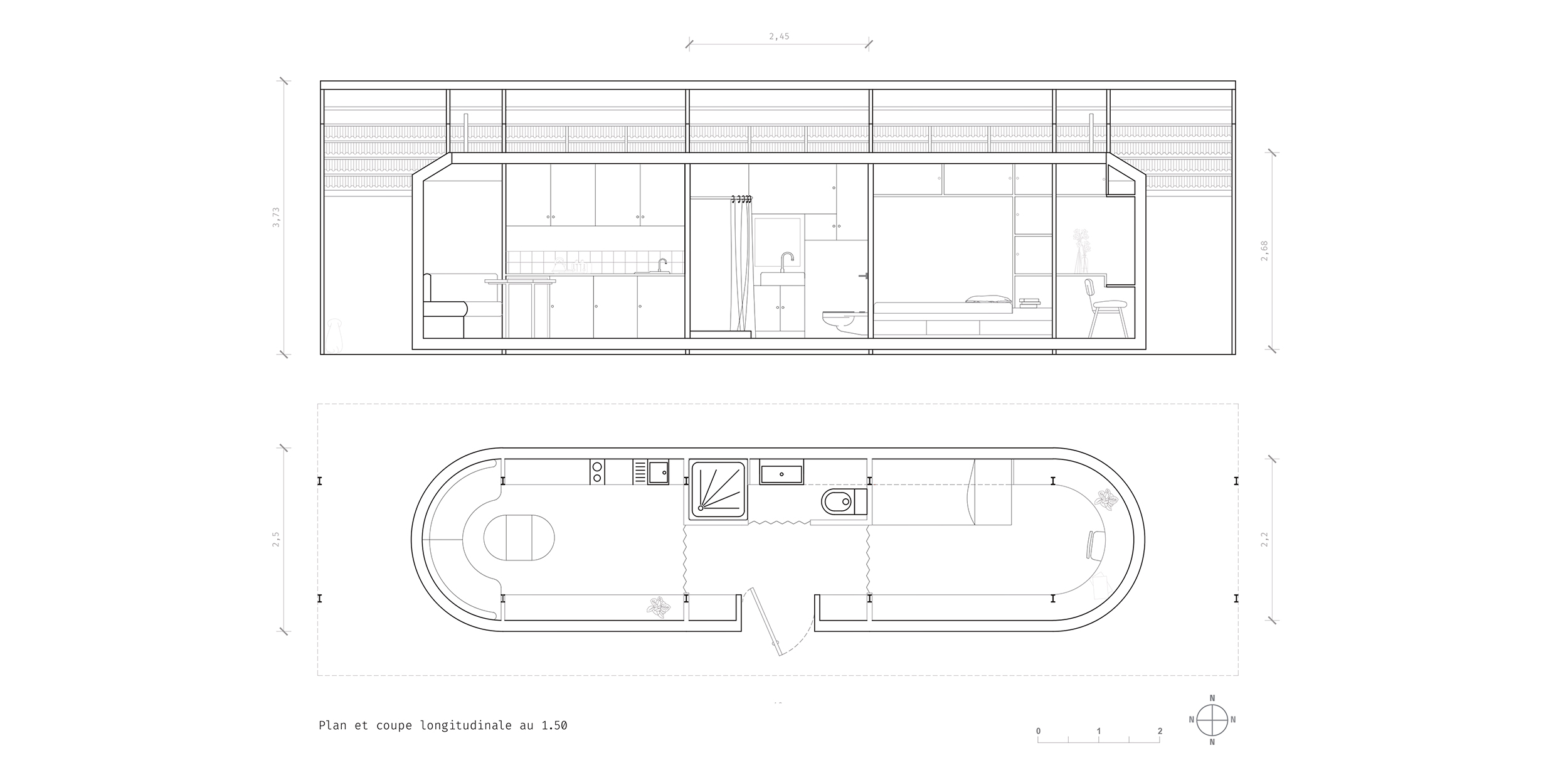
Partant d’une trame modulaire de 2,5 m, déclinée en trois longueurs (10, 12,5 et 15 mètres), l’idée est de développer une série de modules autonomes, capables de s’implanter dans de multiples contextes, sans nécessiter de positionnement spécifique ni d’infrastructure préexistante. Chaque module répond à un besoin ciblé — se loger, se soigner, s’instruire — et peut être installé en milieu rural, urbain ou naturel, offrant ainsi une réponse adaptée aux situations d’urgence comme aux usages permanents.

Unité S(helter)

Partant du constat que l’accès au logement devient de plus en plus restreint, nous avons choisi de dédier l’unité S(helter) à un espace de refuge. Qu’il soit implanté en pleine forêt ou en centre-ville, cet habitat s’adapte aux situations et permet l’accueil d’une à deux personnes.

Unité L(ibrary)

Compte tenu de la présence affaiblie de l’offre culturelle notamment dans les territoires isolés, nous avons choisi de dédier l’unité L(ibrary) à un espace de lecture et de médiation culturelle. Ce module permet d’offrir l’accès à une bibliothèque, ouverte à tous, et capable de s’implanter au plus près des publics éloignés des structures traditionnelles.

Unité M(édical)

Dans un contexte où les zones rurales souffrent d’un désert médical croissant, et que la télémédecine, malgré ses avancées, reste encore fragmentée pour les populations vulnérables, nous avons choisi d’attribuer l’unité M(edical) à un espace de consultation permettant à deux médecins d’exercer à proximité des populations isolées.

STRUCTURE

Les éléments de la structure sont volontairement surdimensionné, en anticipant que l’ensemble des IPE proviendrait du réemploi. Ce choix implique une variabilité potentielle des performances mécaniques des matériaux, justifiant la marge de sécurité

Préfabrication : Deux variations de modules isolants de 2,5×2,5 m sont préfabriquées en atelier.


Transport : L’ensemble peut être transporté par un semi-remorque standard aménagé.


Usage : L’assemblage est ensuite réalisé sur le site par emboîtement et boulonnage des modules.


Assemblage : Une fois assemblé, le système modulaire permet des configurations sur mesure pour chaque typologie programmatique de manière pérenne.

ÉNERGIE

Nous avons simulé l’ensoleillement et la performance thermique (PVGIS, CASAnova) afin d’optimiser l’implantation photovoltaïque et viser une autonomie énergétique, voire un excédent. La contrainte dimensionnelle de 2,5 m limitait l’isolation à 15 cm de laine de bois (U = 0,25 W/m²·K) et un double vitrage (U = 1 W/m²·K), entraînant des besoins de chauffage importants. Pour maintenir 19 °C (S et L) et 22 °C (M), une pompe à chaleur performante, alimentée par le solaire, assure la viabilité de modules compacts et efficients.

CARBONE

Dans le cadre de notre démarche d’analyse environnementale, nous avons pris pour cas d’étude un module S. L’étude intègre notamment le remplacement des panneaux photovoltaïques (tous les 30 ans) et de la pompe à chaleur (tous les 15 ans).


Sur la base des données ADEME et INIES, nous estimons l’empreinte à environ 576 kg CO₂e/m² sur 50 ans. Ce chiffre reste optimiste, car certains postes (transport, ateliers, réseau électrique, entretien) n’ont pas été pris en compte. Ce travail constitue donc une première étape vers une compréhension plus fine de l’impact environnemental d’un projet architectural afin d’intégrer plus systématiquement ces considérations dans nos futurs projets.