HABITER PAR LE CARRÉ

Géométrie, lumière, meuble

— SUJET

Logement pour une famille


— DATE

Juin 2022


— ENSEIGNANT

Karim Basbous

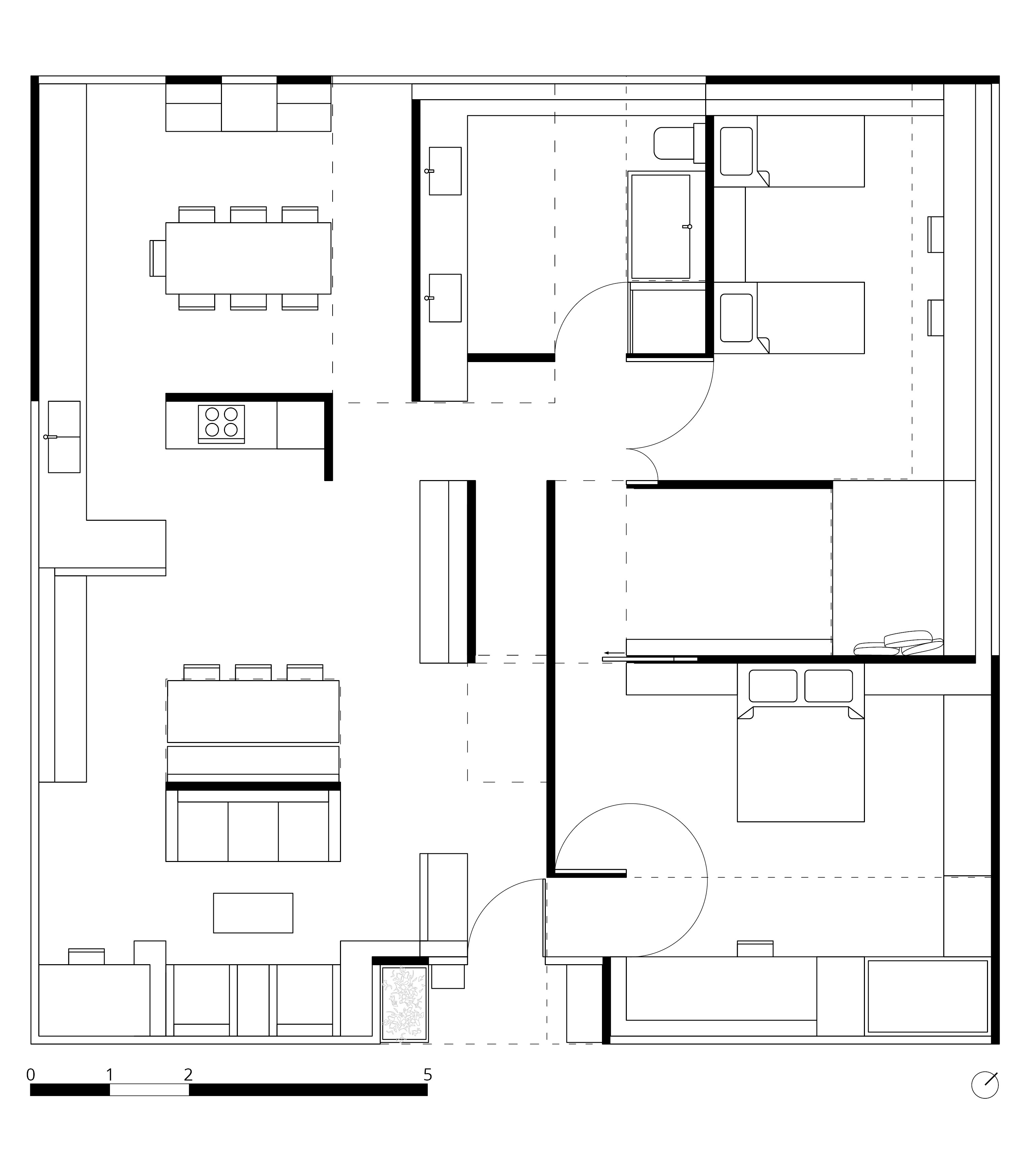
Logement de 11 m x 11 m incluant un espace d’œnologie et un espace de lecture. Le jeu des parois et du mobilier génère des dilatations spatiales et des porosités qui permettent une mise en relation de chaque espace.


Le projet répond au programme en créant deux grands axes de circulations desservant l’ensemble des espaces. Chaque espace est habité par un mobilier périphérique. Ce “paysage” mobilier travail avec les parois pour dessiner les limites de chaque espace sans pour autant l’isoler du reste du logement.